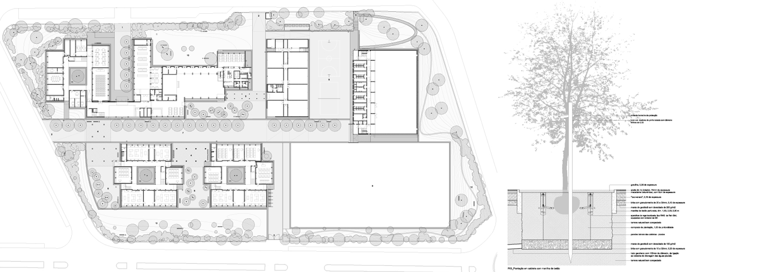
Modernização da Escola Secundária José Régio/ Espaço Exterior | Coordenação: Camilo Cortesão & Associados, Arquitectos Lda. | Vila do Conde | 2008